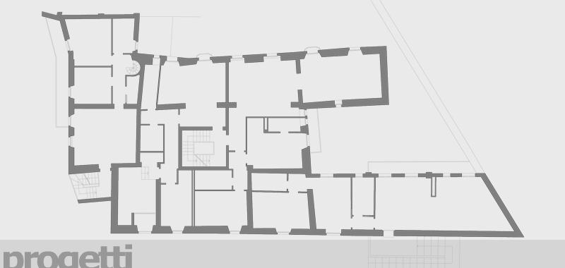
Complesso rurale / Recupero a scopo residenziale di complesso sulle colline di Palazzago (BG)












 

 

con Carlo Fornoni e Flavio Della Vite architetti


studio progetti portfolio

 

www.FilippoBoatti.com / credit